MB-79N SI+
MB-79N SI+
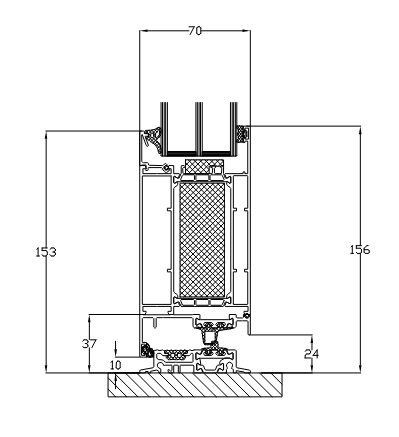
Drzwi aluminiowe zewnętrzne 1- lub 2-skrzydłowe. Dzięki ich budowie, zastosowanemu uszczelnieniu, a także progowi z przekładką termiczną, pozwalają na spełnienie podwyższonych wymagań izolacyjności termicznej oraz akustycznej drzwi. Wyposażenie standardowe:
- 3-punktowa zasuwnica
- 3 zawiasy 2-skrzydełkowe
- szyba o Ug = 1,1 W/(m2K)
- wkład docieplający
- farba matowa RAL 7016 i 9016
- próg z przegrodą termiczną
- klamka aluminiowa
- wkładka montażowa


Užpildų pavyzdžiai










































Aliuminio durų spalvos


Durų konstrukcijos























Stiklai
Papildomos galimybės







Durų rankenos ir turėklai
Palyginkite produktus
| Informacijos | MB-79N SI+ | MB-86N SI | MB-78EI drzwi przeciwpożarowe | MB-70HI | MB-45 | MB-70 |
|---|---|---|---|---|---|---|
| Kamerų skaičius | 3 | 3 | 3 | 3 | 1 | 3 |
| Apkalos gylis | 70 mm | 77 mm | 78 mm | 70 mm | 45 mm | 70 mm |
| Sandariklių skaičius | 3 | 2 | 2 | 2 | 2 | 2 |
| Šilumos pralaidumas | Ud = 1,0 W/(m2K)* | Ud = 0,83 W/(m2K)* | Ud = 1,6 | Ud = 1,2 W/(m2K)* | — | Uw = 1,3 W/(m2K)* |













































MB-79N SI+
MB-86N SI
MB-78EI drzwi przeciwpożarowe
MB-70HI
MB-45
MB-70


