IDEAL NEO MD RENOVATION
IDEAL NEO MD RENOVATION
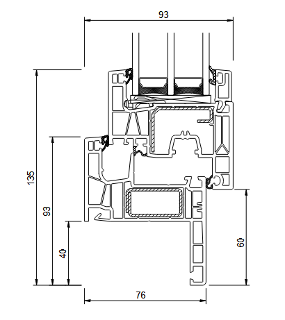
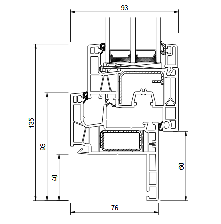
Renovacijos rėmų sistema naudojama langams montuoti neišmontuojant senų rėmų. Šio tipo langų ypatumą sudaro tai, kad naudojami specialūs renovacijos rėmai su vadinamuoju maskuojamuoju profiliu, kuris iš vidaus uždengia medinį rėmą, sukurdamas charakteringą juostą, o iš išorės galime naudoti specialius apvadinius profilius. Rėmuose esantys maskuojamieji profiliai yra skirtingo pločio (40 mm, 70 mm), tačiau juos taip pat galima išpjauti pagal konkrečius poreikius

40 mm (A)

40 mm (B)

70 mm

PVC langų spalvos


02.20.71.000001-504700-047
701605-167
701205-167
701205-097
702305-167
915205-168
S30.30.70.0057.001
887505-167
308105-167
701605-097
2052089-167
612505-167
9.1293001-195
02.20.01.000002-504700-047
F456-3081
3118076-167
3152009-167
725105-167
Jet black
1137905-167
(DB703) 1.0065002-097
(7015) 02.11.71.000040-097
2097013-167
3162002-167
2115008-167
Meranthi
Meranthi
02.12.17.000001-195
715505-167
2178001-167
703905-167
703905-097
F470-3001
49240015-148
61
Stiklai
Papildomos galimybės



Rankenos
Palyginkite produktus
| Informacijos | IDEAL NEO MD RENOVATION | IDEAL 7000 NL | IDEAL NEO MD MONOBLOCK | IGLO EDGE |
|---|---|---|---|---|
| Kamerų skaičius | 5/6 | 5 | 6 | 7 |
| Apkalos gylis | 76 mm | 120 mm | 76 mm / 122 mm / 142 mm / 162 mm | 82 mm |
| Sandariklių skaičius | 3 | 2 | 3 | 3 |
| Šilumos pralaidumas | Uw = 0,76 W/(m2K)* * Langui, kurio matmenys: 1230x1480 mm, su „Swisspacer Ultimate“ plastikiniu rėmu. | Uw = 0,82 W/(m2K)* * Langui, kurio matmenys: 1230x1480 mm, su „Swisspacer Ultimate“ plastikiniu rėmu. | Uw = 0,76 W/(m2K)* * Langui, kurio matmenys: 1230x1480 mm, su „Swisspacer Ultimate“ plastikiniu rėmu. | Uw = 0,66 W/(m2K)* |
| Stiklinimo paketas | 24-52 mm | 24-54 mm | 24-52 mm | 48-58 mm |
| Akustinė izoliacija | dB = 36 | dB = 36 | dB = 36 | 36-47 dB |






























































































IDEAL NEO MD RENOVATION
IDEAL 7000 NL
IDEAL NEO MD MONOBLOCK
IGLO EDGE