MB-70 ir MB-70HI PSK
Tobulumas kiekviename colyje
MB-70 ir MB-70HI PSK
Terasos sistema, kuri pakeis bet kokį interjerą ir pabrėš unikalų pastato architektūrinį stilių. Klientai visame pasaulyje įvertino aukščiausią kokybę, patikimumą ir daugybę papildomų galimybių, kurios leidžia visiškai individualizuoti gaminį.

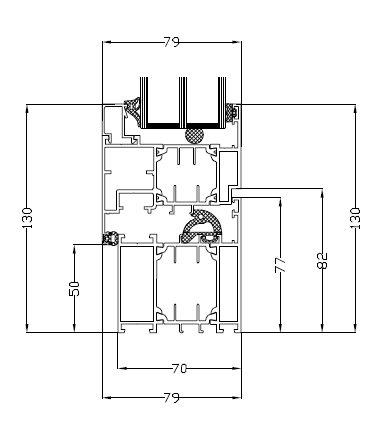
MB-70 PSK

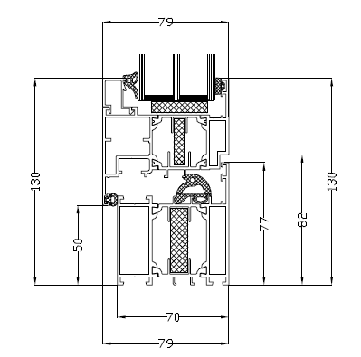
MB-70HI PSK

Aliuminio terasos sistemos spalvos


Stiklai
Aliuminio terasos sistemos





Palyginkite produktus
| Informacijos | MB-70 ir MB-70HI PSK | IGLO LIGHT PSK | IGLO ENERGY PSK | IGLO 5 PSK | DUOLINE PSK | SOFTLINE PSK |
|---|---|---|---|---|---|---|
| Kamerų skaičius | 3 | 5 | 7 | 5 | Pilnas profilis | Pilnas profilis |
| Apkalos gylis | 70 mm | 70 mm | 82 mm | 70 mm | 82/92 mm | 68/78/88 mm |
| Sandariklių skaičius | 3 | 2 | 3 | 2 | 3 | 2 |
| Šilumos pralaidumas | Uw = 0,8 W/(m2K) * | Uw = 0,84 W/(m2K) | Uw = 0,65 W/(m2K) | Uw = 0,81 W/(m2K)* | PUŠIS DL68 Uw=0,93 *1
| PUŠIS 68 Uw=1,06 *1 |
| Stiklinimo paketas | 24-53 mm | 24-40 mm | 24-48 mm | 24-40 mm | DL68: 24-44mm | SL68: 24-32mm |




































MB-70 ir MB-70HI PSK
IGLO LIGHT PSK
IGLO ENERGY PSK
IGLO 5 PSK
DUOLINE PSK
SOFTLINE PSK



