IGLO-HS ALUCOVER
IGLO-HS ALUCOVER
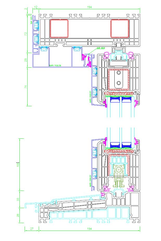
Pakeliamos–stumdomos durų sistemos IGLO-HS Alucover sprendimas sukurtas moderniai architektūrai ir didelių matmenų terasų įstiklinimams. Konstrukcija sujungia tvirtus IGLO-HS profilius su elegantiška aliuminio apdaila išorinėje pusėje, užtikrinančia aukštą ilgaamžiškumą, atsparumą oro sąlygoms ir išskirtinę estetiką.
IGLO-HS Alucover – tai idealus sprendimas žmonėms, kurie tikisi naudojimo komforto, modernaus dizaino ir panoraminio vaizdo į aplinką.
STANDARTAS:
- Swisspacer Ultimate Frame
- stačiakampis įstiklinimo karoliukas
- aliumininė rankena
- V-Perfect suvirinimas
- RAL matinis lakas
Kolorystyka systemu tarasowego PVC



915205-168
9152
9.1293001-195
1137905-167
02.12.17.000001-195
F456-3081
3118076-167
725105-167
715505-167
702305-167
703905-167
703905-097
701205-167
701205-097
(DB703) 1.0065002-097
(7015) 02.11.71.000040-097
MAT 436-6023
701605-167
701605-097
02.20.71.000001-504700-047
Jet black
02.20.01.000002-504700-047
2178001-167
F470-3001
470-3004
470-9036
49240015-148
2115008-167
3152009-167
Meranthi
2052089-167
Meranthi
3162002-167
2097013-167
887505-167
Mattex CC 470-1029
1600505-167
612505-167
308105-167
500705-167
1515005
Stiklai
Systemy tarasowe PVC


Palyginkite produktus
| Informacijos | IGLO-HS ALUCOVER | MB-77HS HI MONORAIL | IGLO-HS | MB-77HS HI | DUOLINE HS |
|---|---|---|---|---|---|
| Kamerų skaičius | 7 | 3 | 7 | 3 | Pilnas profilis |
| Apkalos gylis | 206 mm | 174 mm | 194 mm | 174 mm | 194/214/234 mm |
| Sandariklių skaičius | 2 | 2 | 2 | 2 | 3 |
| Šilumos pralaidumas | Uw = 0,73 W/(m2K)* | HS Uw = 0,75 W/(m2K)* | Uw = 0,71 W/(m2K)* | HS Uw = 1,0 W/(m2K)* | SOSNA 68 Uw=1,0 *1 / SOSNA 78 Uw=0,85 *2 / SOSNA 88 Uw=0,79 *3 *1 dla konstrukcji o wymiarach 3600x2450 mm z szybą o wartości Ug=0,8 W/(m2K) + ramką Swisspacer Ultimate 2* dla konstrukcji o wymiarach 3600x2450 mm z szybą o wartości Ug=0,6 W/(m2K) + ramką Swisspacer Ultimate 3* dla konstrukcji o wymiarach 3600x2260 z szybą o wartości Ug=0,5 W/(m2K) + ramką Swisspacer Ultimate |
| Stiklinimo paketas | 36-52 mm | 9-61 mm | 36-52 mm | 9-61 mm | DL68: 24-44mm |






































IGLO-HS ALUCOVER
MB-77HS HI MONORAIL
IGLO-HS
MB-77HS HI
DUOLINE HS