IDEAL NEO MD-FS
IDEAL NEO MD-FS
yra labai patrauklus dizaino pasiūlymas klientams, kurie vertina nesenstantį stilių. Paprasta, simetriška, kubistinė forma yra skiriamasis sistemos bruožas. Statūs kampai ir geometrinė architektūra, o tuo pačiu ir vizualinis konstrukcijos lengvumas.
Standartinė įranga:
- dviejų kamerų stiklo paketas Ug=0,5 W/(m2K)
- Swisspacer Ultimate plastikinis šiltas rėmas – kaip nemokama parinktis
- 4 apsaugos nuo įsilaužimo fiksatoriai, priklausomai nuo durų varčios dydžio ir furnitūros sistemos
- mikroventiliacija
- aliumininė rankena
- neteisinga rankenos padėties blokavimo mechanizmas
- juodos arba pilkos spalvos periferiniai, stiklinimo ir centriniai sandarikliai
- užpildykite apatinį tvirtinimo griovelį
- slenksčio juostelė

Skrzydło zlicowane z ramą okna

Wklejany pakiet szybowy

PVC langų spalvos


701605-097
02.20.71.000001-504700-047
701205-167
701205-097
702305-167
915205-168
S30.30.70.0057.001
887505-167
308105-167
Pine
612505-167
701605-167
9.1293001-195
02.20.01.000002-504700-047
F456-3081
3118076-167
3152009-167
725105-167
Jet black
1137905-167
(DB703) 1.0065002-097
(7015) 02.11.71.000040-097
2097013-167
3162002-167
2115008-167
Meranthi
Meranthi
02.12.17.000001-195
715505-167
2178001-167
703905-167
703905-097
F470-3001
49240015-148
61
Stiklai
Papildomos galimybės



Rankenos
Palyginkite produktus
| Informacijos | IDEAL NEO MD-FS | IDEAL NEO AD | IGLO EDGE | IGLO Energy Classic |
|---|---|---|---|---|
| Kamerų skaičius | 6 | 5/6 | 7 | 7 |
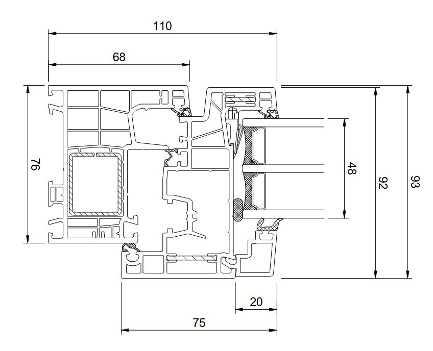
| Apkalos gylis | 76 mm | 76 mm | 82 mm | 82 mm |
| Sandariklių skaičius | 3 | 2 | 3 | 3 |
| Šilumos pralaidumas | Uw = 0,73 W/(m2K)* * Langui, kurio matmenys: 1230x1480 mm, su stiklo paketu Ug = 0,5 W/(m2K) užpildytu argonu, su „Swisspacer“ plastikiniu rėmu. | Uw = 0,79 W/(m2K)* * Langui, kurio matmenys: 1230x1480 mm, su stiklo paketu Ug = 0,5 W/(m2K) užpildytu argonu, su „Swisspacer“ plastikiniu rėmu. | Uw = 0,66 W/(m2K)* | Uw = 0,73 W/(m2K)* |
| Stiklinimo paketas | 36-68 mm | 24-54 mm | 48-58 mm | 24-52 mm |
| Akustinė izoliacija | dB = 36 | dB = 36 | 36-47 dB | dB = 36-42 |










































































































IDEAL NEO MD-FS
IDEAL NEO AD
IGLO EDGE
IGLO Energy Classic