IDEAL NEO MD MONOBLOCK
IDEAL NEO MD MONOBLOCK
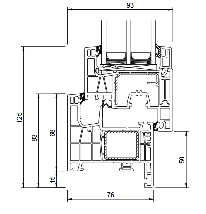
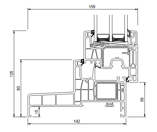
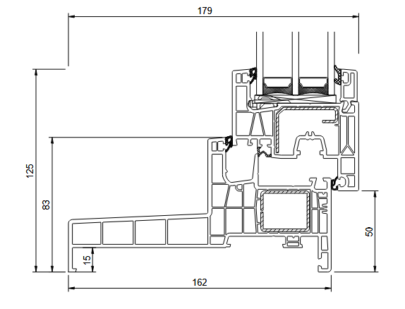
Monoblokiniai rėmai skirti langams, kurie montuojami į termoizoliacinį sluoksnį, gaminti. Platus „Monoblock“ rėmų pločio diapazonas (76 mm, 122 mm, 142 mm, 162 mm) leidžia juos tinkamai parinkti priklausomai nuo izoliacijos storio. Išorinėje rėmo pusėje esanti speciali lentynėlė (palangė) estetiškai maskuoja izoliaciją per visą lango perimetrą, todėl išvengiama šilumos tiltelių. Vidinė „Monoblock“ rėmo įduba užtikrina estetišką montavimą iš vidaus, nereikalaujant tinkuoti.

76 mm

122 mm

142 mm

162 mm

PVC langų spalvos


02.20.71.000001-504700-047
701605-167
701205-167
701205-097
702305-167
915205-168
S30.30.70.0057.001
887505-167
308105-167
701605-097
2052089-167
612505-167
9.1293001-195
02.20.01.000002-504700-047
F456-3081
3118076-167
3152009-167
725105-167
Jet black
1137905-167
(DB703) 1.0065002-097
(7015) 02.11.71.000040-097
2097013-167
3162002-167
2115008-167
Meranthi
Meranthi
02.12.17.000001-195
715505-167
2178001-167
703905-167
703905-097
F470-3001
49240015-148
61
Stiklai
Papildomos galimybės



Rankenos
Palyginkite produktus
| Informacijos | IDEAL NEO MD MONOBLOCK | IDEAL 7000 NL | IDEAL NEO MD RENOVATION | IGLO EDGE |
|---|---|---|---|---|
| Kamerų skaičius | 6 | 5 | 5/6 | 7 |
| Apkalos gylis | 76 mm / 122 mm / 142 mm / 162 mm | 120 mm | 76 mm | 82 mm |
| Sandariklių skaičius | 3 | 2 | 3 | 3 |
| Šilumos pralaidumas | Uw = 0,76 W/(m2K)* * Langui, kurio matmenys: 1230x1480 mm, su „Swisspacer Ultimate“ plastikiniu rėmu. | Uw = 0,82 W/(m2K)* * Langui, kurio matmenys: 1230x1480 mm, su „Swisspacer Ultimate“ plastikiniu rėmu. | Uw = 0,76 W/(m2K)* * Langui, kurio matmenys: 1230x1480 mm, su „Swisspacer Ultimate“ plastikiniu rėmu. | Uw = 0,66 W/(m2K)* |
| Stiklinimo paketas | 24-52 mm | 24-54 mm | 24-52 mm | 48-58 mm |
| Akustinė izoliacija | dB = 36 | dB = 36 | dB = 36 | 36-47 dB |






























































































IDEAL NEO MD MONOBLOCK
IDEAL 7000 NL
IDEAL NEO MD RENOVATION
IGLO EDGE