MB-78EI drzwi przeciwpożarowe
MB-78EI drzwi przeciwpożarowe
Jednym z niepożądanych zdarzeń losowych, których się obawiamy i którym staramy się zapobiegać jest pożar. O ile w naszych domach drzwi ognioodporne mogą okazać się użyteczne w oddzieleniu kotłowni od reszty domu, o tyle zastosowanie ich w dużych projektach budowlanych, jak biurowce i fabryki jest niezbędnym wymogiem. Zamykają one strefy pożarowe, co pozwala ograniczyć straty w razie pożaru i w wielu przypadkach chronić ludzkie życie. Drzwi przeciwpożarowe osiągają klasę odporności ogniowej od EI30 do EI60.
ZALETY
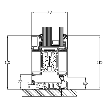
- izolowane termicznie profile aluminiowe, których głębokość wynosi 78 mm
- szyby ognioodporne, możliwość wyboru różnych rodzajów szkła
- okucia spełniające wymagania przeciwogniowe
- specjalne uszczelki pęczniejące i ceramiczne zapobiegające przedostawaniu się ognia i dymu
- szeroka gama kolorów RAL, kolorów specjalnych i struktur
- wypełnienie z szyb o grubości od 20 mm do 45 mm oraz od 47 mm do 49 mm


Aliuminio durų spalvos


Stiklai
Drzwi aluminiowe - opcje dodatkowe


Durų rankenos ir turėklai
Palyginkite produktus
| Informacijos | MB-78EI drzwi przeciwpożarowe | MB-86N SI | MB-79N SI+ | MB-70HI | MB-45 | MB-70 |
|---|---|---|---|---|---|---|
| Kamerų skaičius | 3 | 3 | 3 | 3 | 1 | 3 |
| Apkalos gylis | 78 mm | 77 mm | 70 mm | 70 mm | 45 mm | 70 mm |
| Sandariklių skaičius | 2 | 2 | 3 | 2 | 2 | 2 |
| Šilumos pralaidumas | Ud = 1,6 | Ud = 0,83 W/(m2K)* | Ud = 1,0 W/(m2K)* | Ud = 1,2 W/(m2K)* | — | Uw = 1,3 W/(m2K)* |
| Užpildai, kurių storis | 15-60 mm stiklas | 15-60 mm stiklas, įdėjimo skydelis 36 mm, dengiamasis užpildas 36 mm | 14,5- 53,5 mm stiklas, įdėjimo skydelis 36 mm | 6-24,5 mm stiklas | 14,5- 53,5 mm stiklas, įdėjimo skydelis 36 mm |


MB-78EI drzwi przeciwpożarowe
MB-86N SI
MB-79N SI+
MB-70HI
MB-45
MB-70

