MB-77HS HI MONORAIL
MB-77HS HI MONORAIL
Drzwi podnoszono-przesuwne są idealną propozycją jako zabudowa łącząca pokoje lub ogrody zimowe ze środowiskiem zewnętrznym, stanowią wygodne wyjścia na balkon, taras
lub otwartą przestrzeń ogrodu.
Wyposażenie standardowe:
- okucia podnoszono–przesuwne G-U, wyposażone w 3 bolce ryglujące
- zaczep mikrowentylacji
- klamka aluminiowa wewnątrz, pochwyt wpuszczany od zewnątrz
- pakiet 3-szybowy (2-komorowy) wypełniony argonem, o współczynniku Ug = 0,5 W/(m²K)
- międzyszybowa ramka stalowa ocynkowana
- 2 uszczelki EPDM (zew. i wew.) w kolorze czarnym
- wózki systemowe o nośności 300 kg
- próg rama o wysokości 48 mm
- kolor RAL mat: biały (9016), antracyt (7016)


Kolorystyka systemu tarasowego z aluminium


Stiklai
Systemy tarasowe z aluminium


Palyginkite produktus
| Informacijos | MB-77HS HI MONORAIL | MB-59HS HI | IGLO-HS | IGLO-HS ALUCOVER | MB-77HS HI | DUOLINE HS |
|---|---|---|---|---|---|---|
| Kamerų skaičius | 3 | 3 | 7 | 7 | 3 | Pilnas profilis |
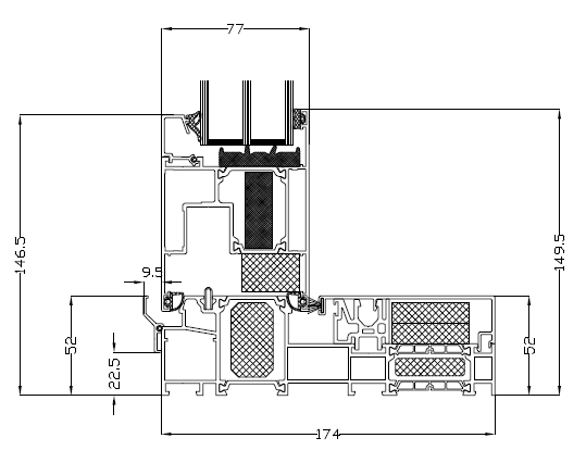
| Apkalos gylis | 174 mm | 174 mm | 194 mm | 206 mm | 174 mm | 194/214/234 mm |
| Sandariklių skaičius | 2 | 2 | 2 | 2 | 2 | 3 |
| Šilumos pralaidumas | HS Uw = 0,75 W/(m2K)* | Uw = 1,8 W/(m2K)* | Uw = 0,71 W/(m2K)* | Uw = 0,73 W/(m2K)* | HS Uw = 1,0 W/(m2K)* | SOSNA 68 Uw=1,0 *1 / SOSNA 78 Uw=0,85 *2 / SOSNA 88 Uw=0,79 *3 *1 dla konstrukcji o wymiarach 3600x2450 mm z szybą o wartości Ug=0,8 W/(m2K) + ramką Swisspacer Ultimate 2* dla konstrukcji o wymiarach 3600x2450 mm z szybą o wartości Ug=0,6 W/(m2K) + ramką Swisspacer Ultimate 3* dla konstrukcji o wymiarach 3600x2260 z szybą o wartości Ug=0,5 W/(m2K) + ramką Swisspacer Ultimate |
| Stiklinimo paketas | 9-61 mm | 9-61 mm | 36-52 mm | 36-52 mm | 9-61 mm | DL68: 24-44mm |




































MB-77HS HI MONORAIL
MB-59HS HI
IGLO-HS
IGLO-HS ALUCOVER
MB-77HS HI
DUOLINE HS
